Architects: ZAO/Standardarchitecture Photography: Su ShengliangWang ZilingZhang Ming Ming Construction Period: 2014 Location: Beijing, China
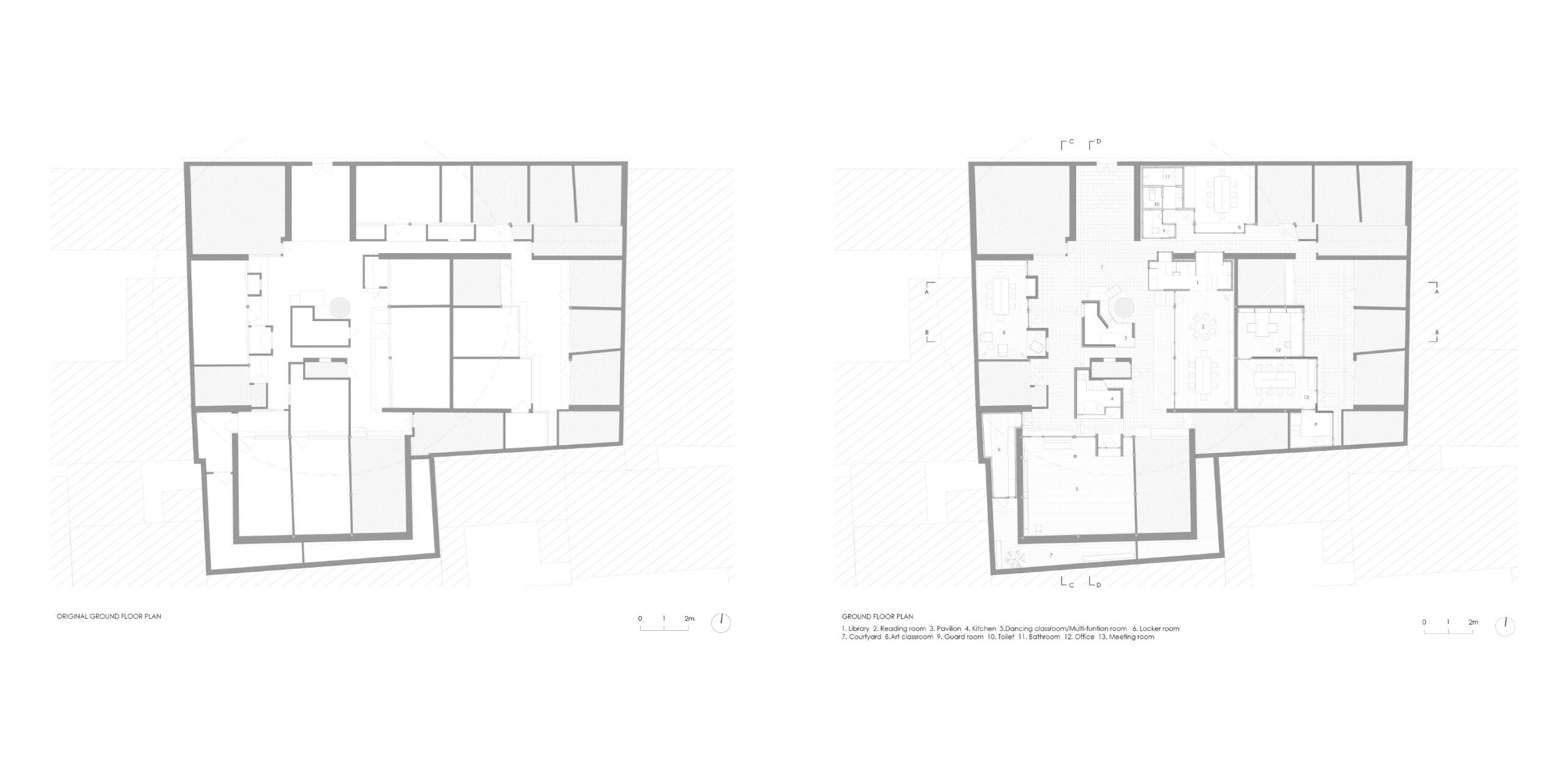
Cha’er hutong is a quiet spot among the busy Dashilar area, situated one kilometer from the Forbidden City in the city centre of Beijing. The #8 Cha’er Hutong courtyard is a typical “Da-Za-Yuan”—big messy courtyard—once occupied by over a dozen families. Over the past fifty years, each family built a small add-on kitchen in the courtyard. These add-on structures are usually considered as urban scrap and all of them have been wiped out with the renovation practices during the past years.
Different from the conventional redevelopment strategies, by redesigning, renovating and reusing the add-on structures in the hutong courtyards, the project allows Beijing citizens and the government to see new and sustainable possibilities for how to put our messy additions to good use. Maybe they can be recognized as cultural relics and critical layers of recent Beijing’s hutong life rather than things that should be erased entirely.
Text provided by the architects.



































