Architects: NIcolas Hugoo Architecture Photography: Charly BroyezPierre Romain-Guedj Construction Period: 2025 Location: Paris, France
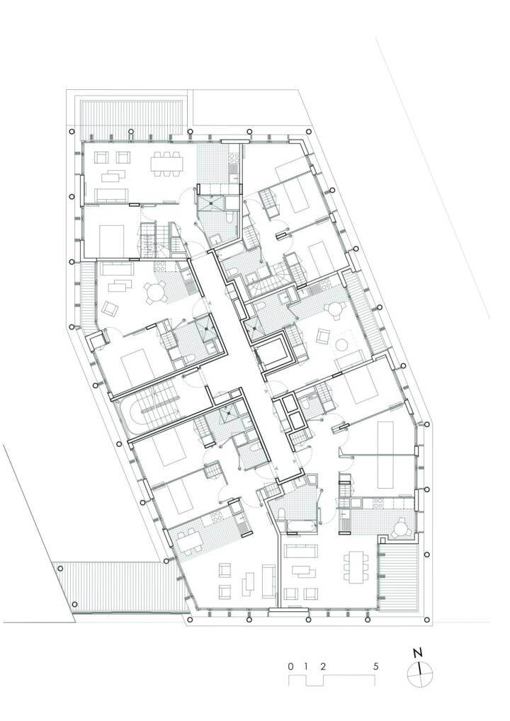
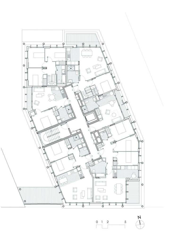
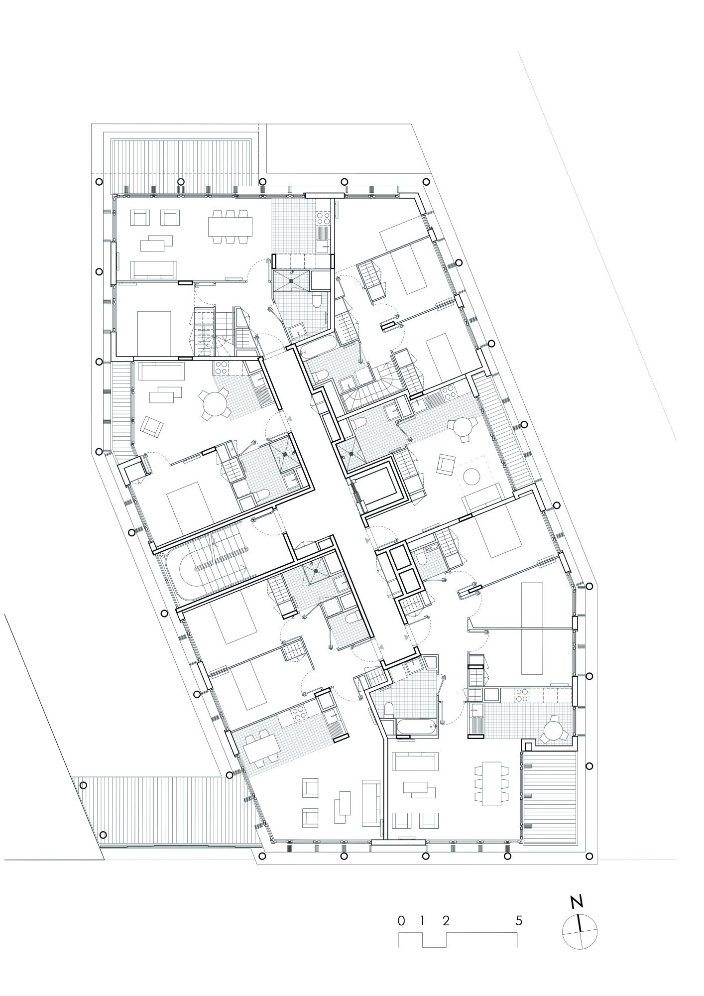
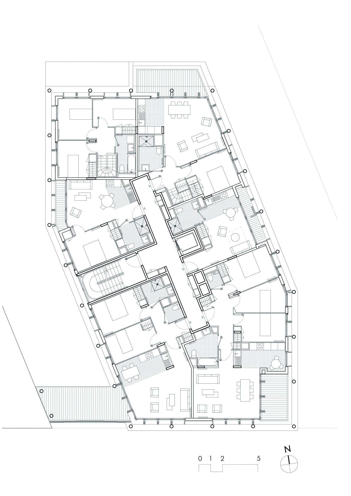
Volumetry serving the urban project
This parallelogram-shaped lot necessitated the present building with its sharp angle. The location and volumetry of the project seek to soften this angularity by playing with inflection. Along the Rue Gerda Taro, this new building front is intersected by porches atop which winter gardens are placed, allowing light to penetrate from the south and offer views over the green heart of the neighborhood from the street.
The comfort of everyday uses
Occupants enter the building through a porch opening onto a landscaped area offering a perspective deep into the parcel and all the way to the public garden. Circulation inside the building is facilitated by natural light on the façade at the level of the stairs, separated from landings by a glass door. The flats, ranging from 1 to 5 rooms, have been designed to meet different needs and the outdoor extensions vary: loggias, balconies and private terraces. The largest flats enjoy double exposure as they are situated at the angles of the building.
Blended construction methods
Lifecycle and environmental performance guide the construction methods implemented on the project, as evidenced in the elementary association of wooden strips and a concrete post and slab structure. This approach creates open plans that allow for future interior adaptations as needed.
Text provided by the architects.




























