Architects: Burr Guillermo Trapiello Photography: Maru Serrano Construction Period: 2025 Location: Madrid, Spain
Patio is a project aimed at revitalizing an industrial space within Madrid’s urban fabric. It is part of the “Elements for Industrial Recovery” series, which seeks to protect the city’s industrial heritage by introducing adaptive use strategies that extend the lifespan of these structures and prevent their demolition.
Over the past three decades, industrial activity in central Madrid has steadily diminished, reaching a point where it has virtually disappeared. This decline mirrors patterns seen in other urban centers: environmental regulations on noise and emissions, coupled with rising land values, have driven industrial uses to the city’s outskirts. As a result, urban industrial buildings have become obsolete—too large for local commerce, too costly for industry, too constrained by regulations for recreational use, and financially unappealing to younger generations inheriting family businesses. These buildings now stand unused.
Read MoreCloseMost of these industrial spaces are located on the ground floors of residential buildings, extending beyond the building’s footprint into interior courtyards. In a cityscape now dominated by residential and commercial uses, these large-volume spaces are no longer needed. Urban planning policies prioritize reclaiming these courtyards, often through the demolition of industrial structures, supported by zoning changes that convert industrial properties into residential use. The most drastic transformation involves limiting the depth of new construction, making residential redevelopment of these industrial buildings unfeasible unless they are partially demolished. The financial incentive for these changes lies in the real estate market, where land values can triple or quadruple when converted into residential properties—largely driven by Madrid’s inflated rental market.
The key to preserving these spaces lies in hybrid uses. These industrial buildings cannot be understood rigidly; they require a more fluid approach to occupancy that takes advantage of their spatial qualities while balancing the costs of adaptation. Elements for Industrial Recovery explores urban and architectural tools to retain these structures in a context that otherwise incentivizes their disappearance.
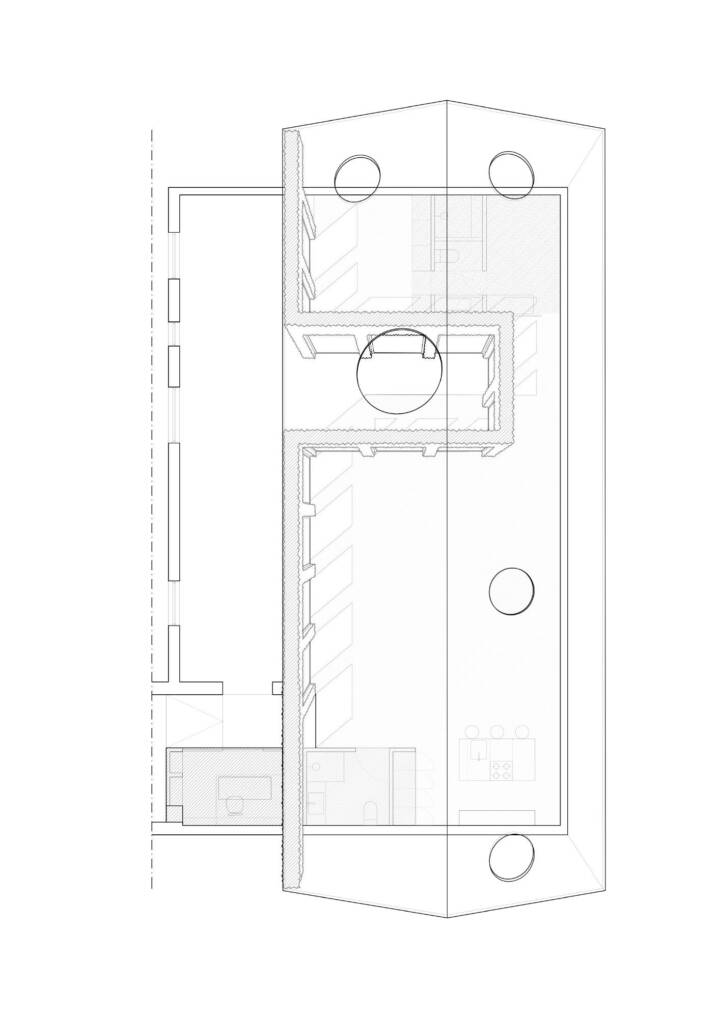
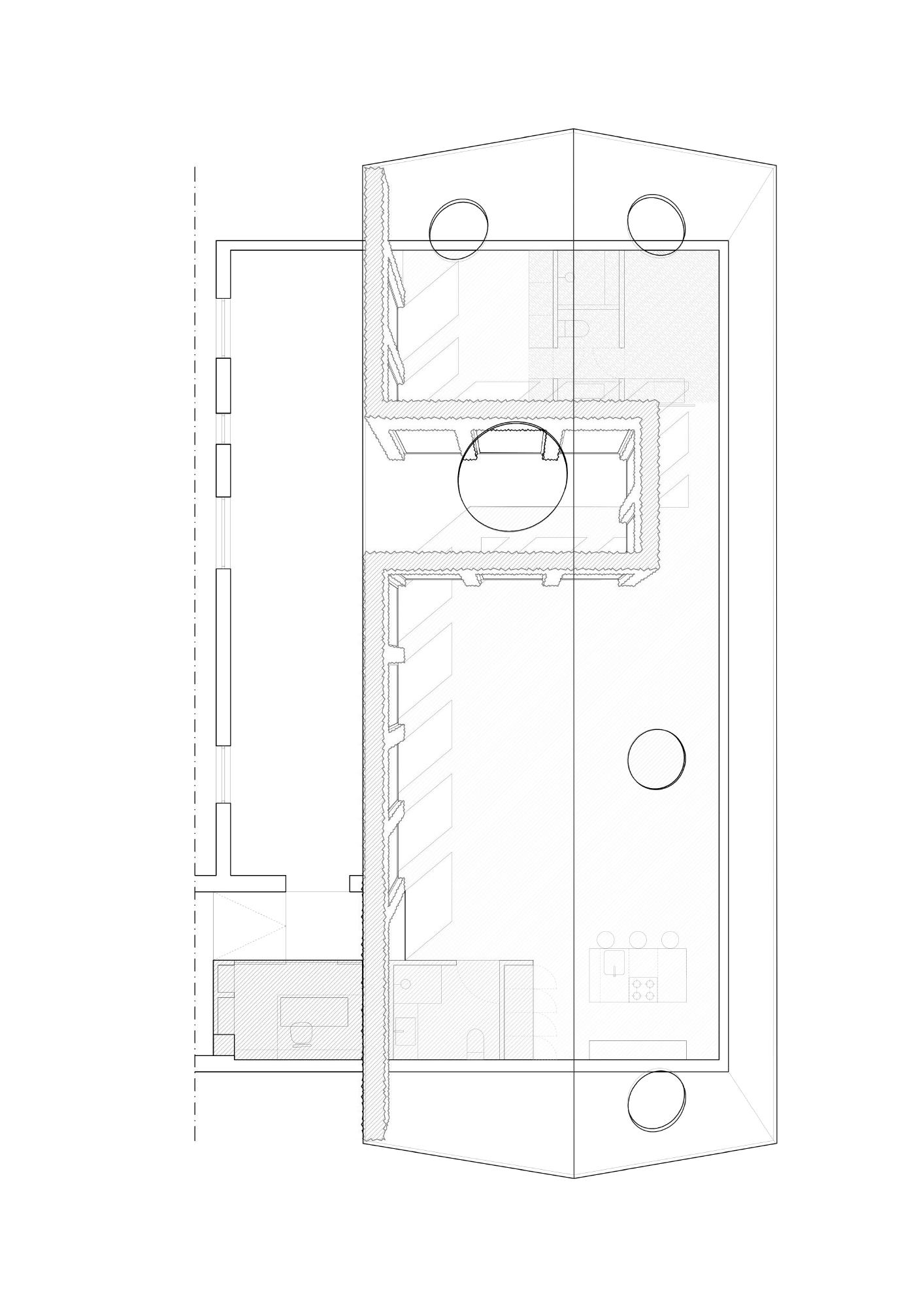
CNM was originally a storage space characterized by a large, continuous pitched roof and nearly opaque lateral walls. The redesign opens this space up, reflecting the vision of its new owner—an artist whose work explores perceptual distortion through technology and digital media. Based on that, the project creates a distorted spatial experience using layered materials, shifting transparencies that transform into reflections, and interior spaces that seem to dissolve into exteriors.
The design materializes in a monumental outer wall composed of a large colonnade with a textured plaster finish. Regularly spaced openings combine fixed glass panels with overlapping sliding doors, creating a seamless interplay of transparency and reflection. The roof’s continuity is preserved as a defining element, visible from any point in the space and strategically perforated to bring natural light into key areas. The interplay between the uninterrupted roofline and the grand colonnade generates a series of overlapping spaces where interior and exterior boundaries blur, creating a dynamic depth of field.
Two distinct material volumes provide intentional contrast and serve as spatial anchors, marking the beginning and end of the journey through the space. The first is a bold yellow volume near the entrance, containing restrooms, storage, and mechanical systems. The second is a wooden structure at the far end of the building, housing additional functional elements and concluding the interior narrative.
The furnishing strategy reinforces the theme of spatial indeterminacy through a collection of movable objects. These pieces are designed to flow between zones, enabling different uses to migrate across the space. Each object is proportioned to pass through the arches, facilitating movement and interaction between areas.
By embracing flexibility, preserving architectural heritage, and integrating hybrid functions, CNM offers a forward-thinking model for the adaptive reuse of industrial spaces in a rapidly evolving urban context.
Text provided by the architects.


































