Architects: Schulz und Schulz Photography: Gustav Willeit Construction Period: 2025 Location: Adorf, Germany
With a new exhibition concept and exceptional architecture, the existing Erlebnismuseum Perlmutter, which has been around for many years, is intended to be transformed into an experience museum that attracts crowds of visitors.
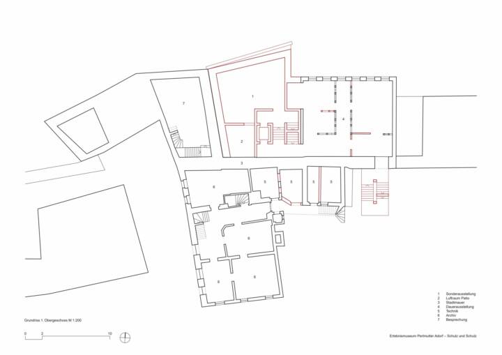
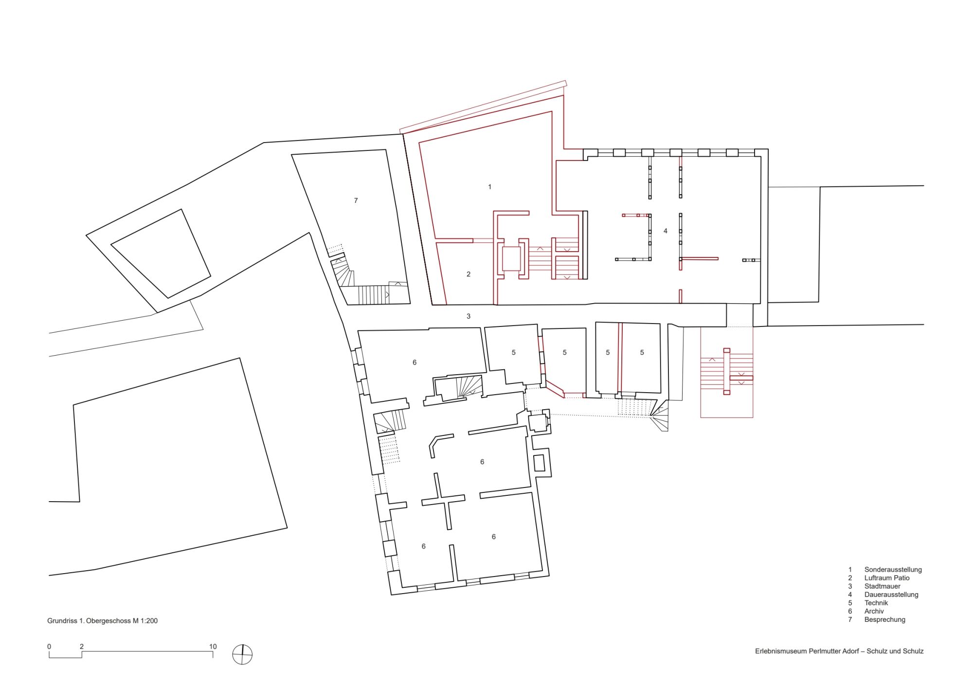
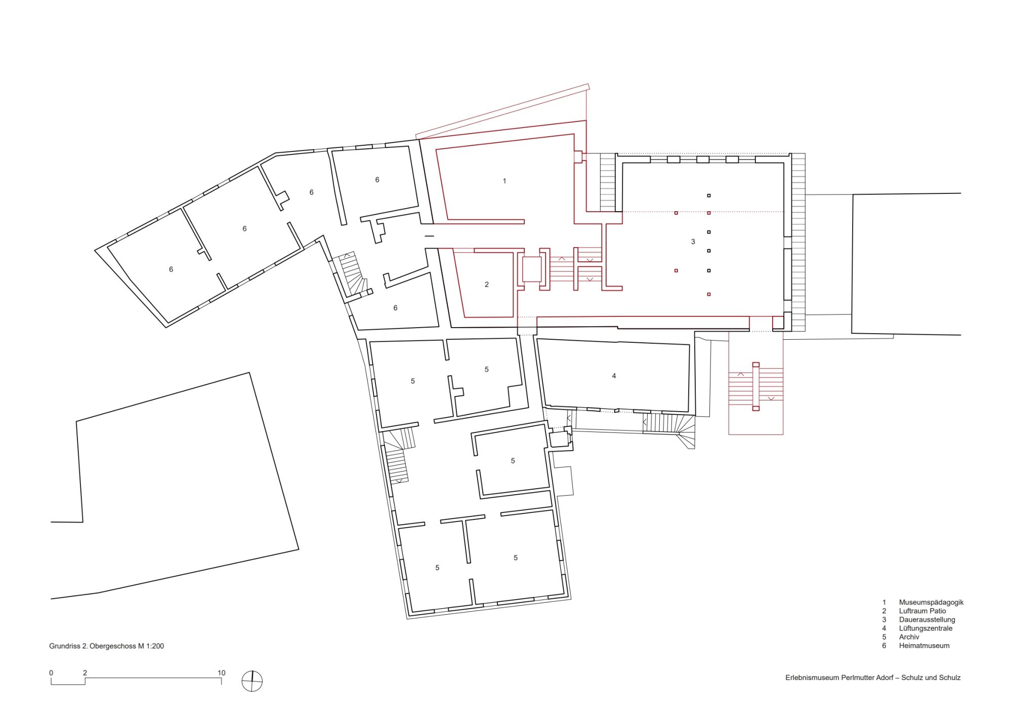
In Adorf’s historic town center, the new museum building fills a plot of land next to the medieval town wall that had never been built on before. It borders the Freiberger Tor, the only preserved town gate in the Vogtland, where the local history museum remains, and together with the neighboring historic half-timbered house, forms the new home for the largest mother-of-pearl collection in Germany.
The design motif is derived from the structure of the freshwater pearl mussel: a rough shell and a precious interior contrast yet are one. The curvature of the outer wall and the board-formed concrete transform the image of a mussel shell. Water running down the facade and flowing into a fountain refers to the mussels’ basis of life.·
Text provided by the architects.
















































