Architects: Lukas Imhof Photography: Hannes Heinzer Construction Period: 2022 Location: Lindenhof, Switzerland
An alternative to “single-family homes» – communal living at Lindenhof. A fire destroyed the existing building down to its foundations. Our task was now to plan a new building that would restore the volumetry and appearance of the historic barn. However, as the farm is no longer used for agricultural purposes, but the ensemble is a listed building, the new replacement building was to be – if you like – a rebuilt version of the old barn. Rental apartments are being built that combine the qualities of single-family homes with those of communal living – and are affordable for families or flat-sharing communities without high incomes. (Rental price of Sfr. 2’100.- for 5.5 rooms on 165m²)
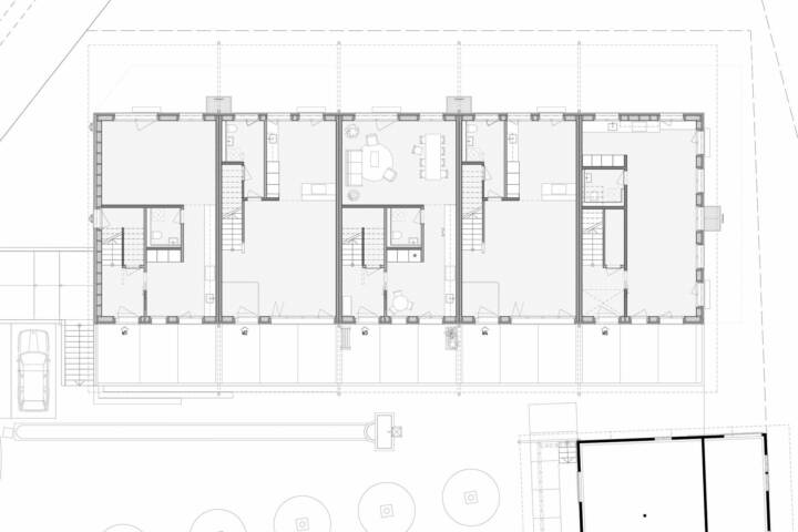
Communal living develops around a shared courtyard, which is also home to the existing, historic residential building and the coach house used by the residents for a variety of purposes. The exterior spaces of the apartments and the apartment entrances are all oriented towards the shared courtyard, in the center of which the historic fountain will be rebuilt. The path to the apartments always leads across the courtyard – there is no direct access to the apartment from the parking garage. The history of the burnt-down building is well documented: A high-quality and atypical timber-framed stable and farm building, probably built in 1829 by Georg Schadegg, was dismantled in 1947 down to the brick-built ground floor, parts of the internal structure and the two threshing floor passages and was extended with a new, then modern barn structure.
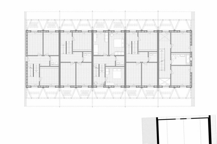
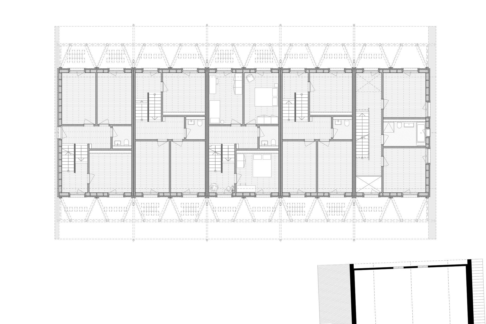
Read MoreCloseThe plinth, windows and the two doorways with their large gates were reused. This conglomerate building served as a reference for the new building in terms of volume, structure, materials, and motifs. The result is a newly built, converted old barn for living in. The volume provided by the previous building posed a problem for residential use: with normal story heights, there would have been only two usable stories. The floor slab of the third story, on the other hand, would be positioned so that the transition from the outer wall to the roof would be around 1.50 above the finished floor – a window in the outer wall would be too low, and a skylight too high.
We responded to this initial situation with a split-level solution – which we also mirrored alternately for each unit, creating two different types of apartments. One is more extroverted, with an extra-high living hall facing the courtyard. The two extra-high living halls facing the courtyard also replicate the two gateways of the historic barn in terms of space and opening behavior. A somewhat more introverted type has its living hall facing the landscape and the kitchen facing the courtyard. On the west façade, we then finish off the building with a special type that responds to the site-specific and organizational location on the narrow side of the structure.
Text provided by the architects.











































