Architects: 2001 Photography: Ludmilla Cerveny Construction Period: 2025 Location: Ehnen, Luxembourg
In the historic centre of Ehnen, along the Luxembourgish Moselle and near an old mill, a hybrid structure brings together a former notary’s office and a viticultural barn under one roof. A young winemaker envisioned this space as her future home.
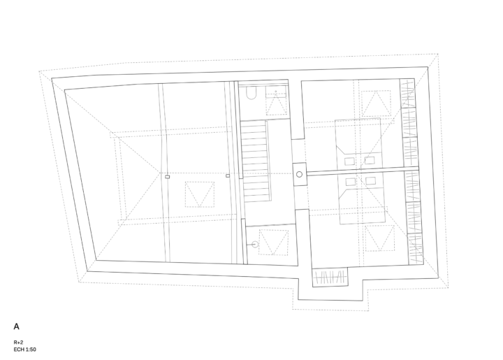
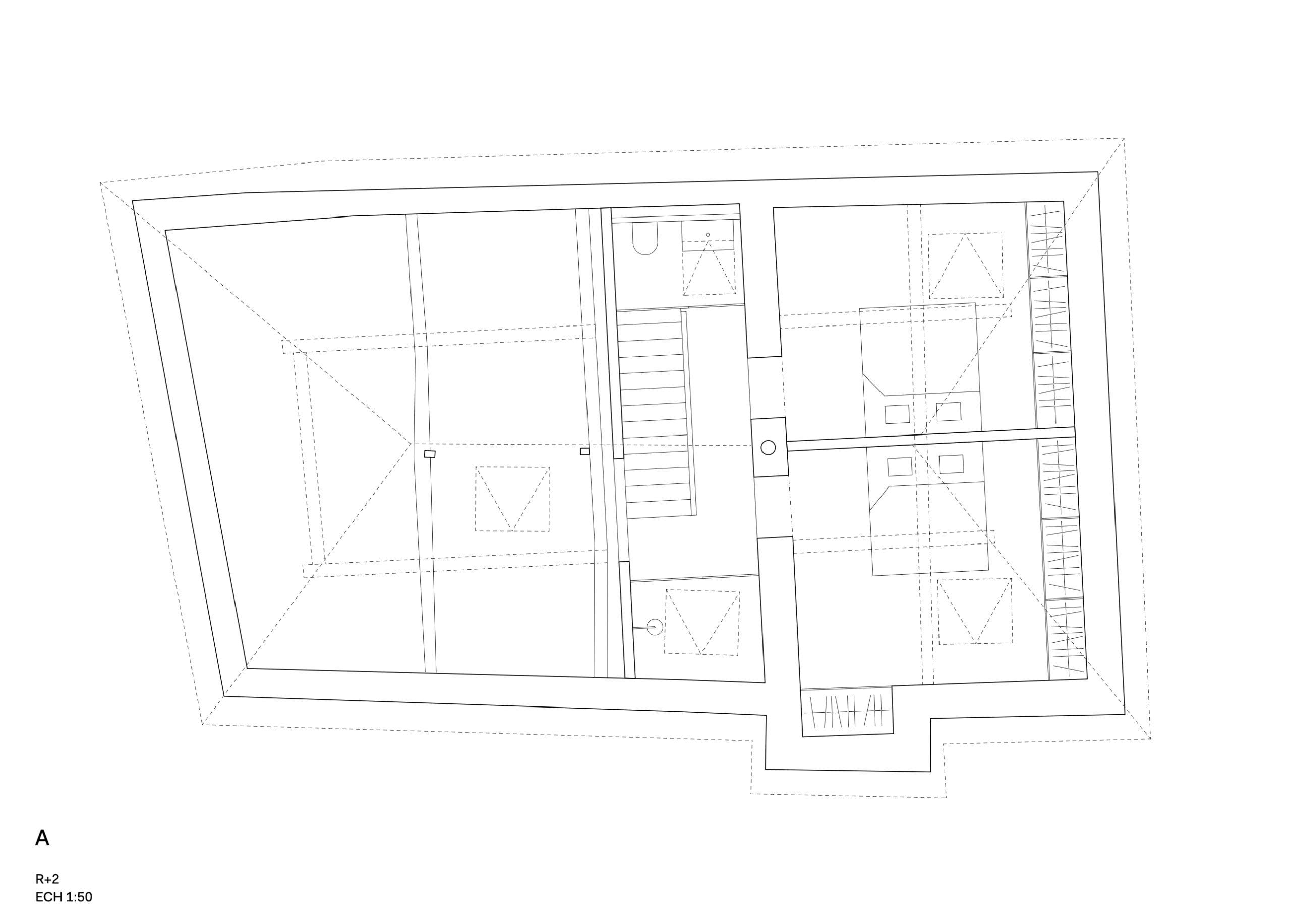
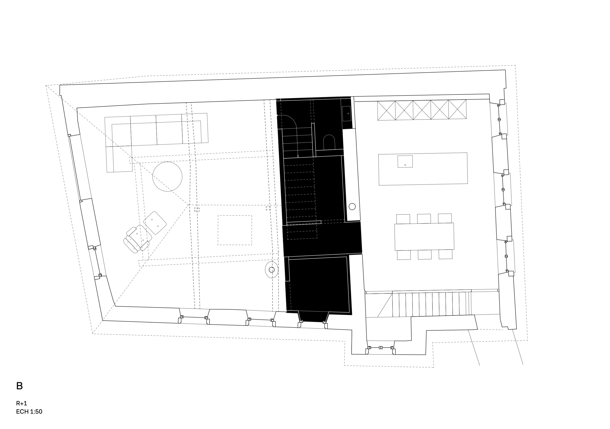
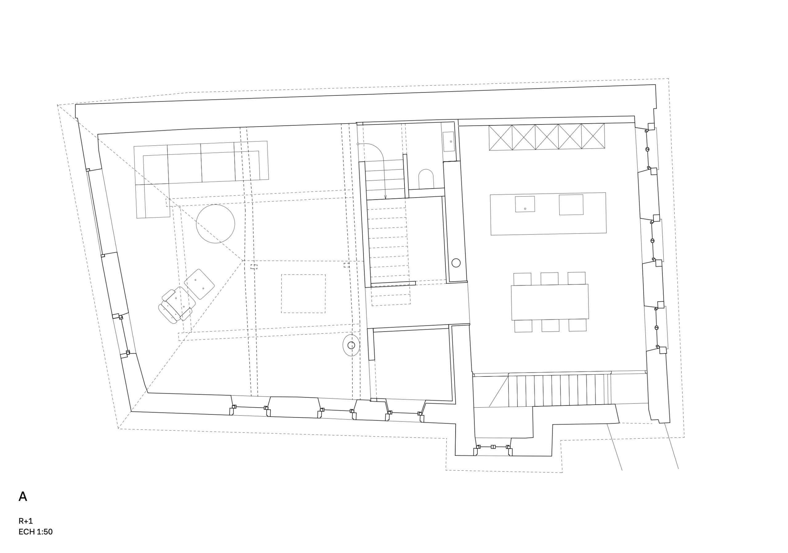
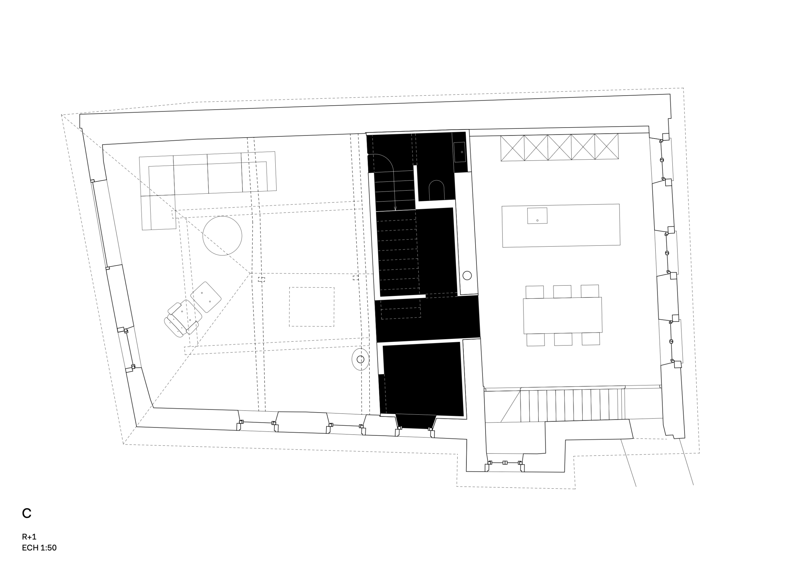
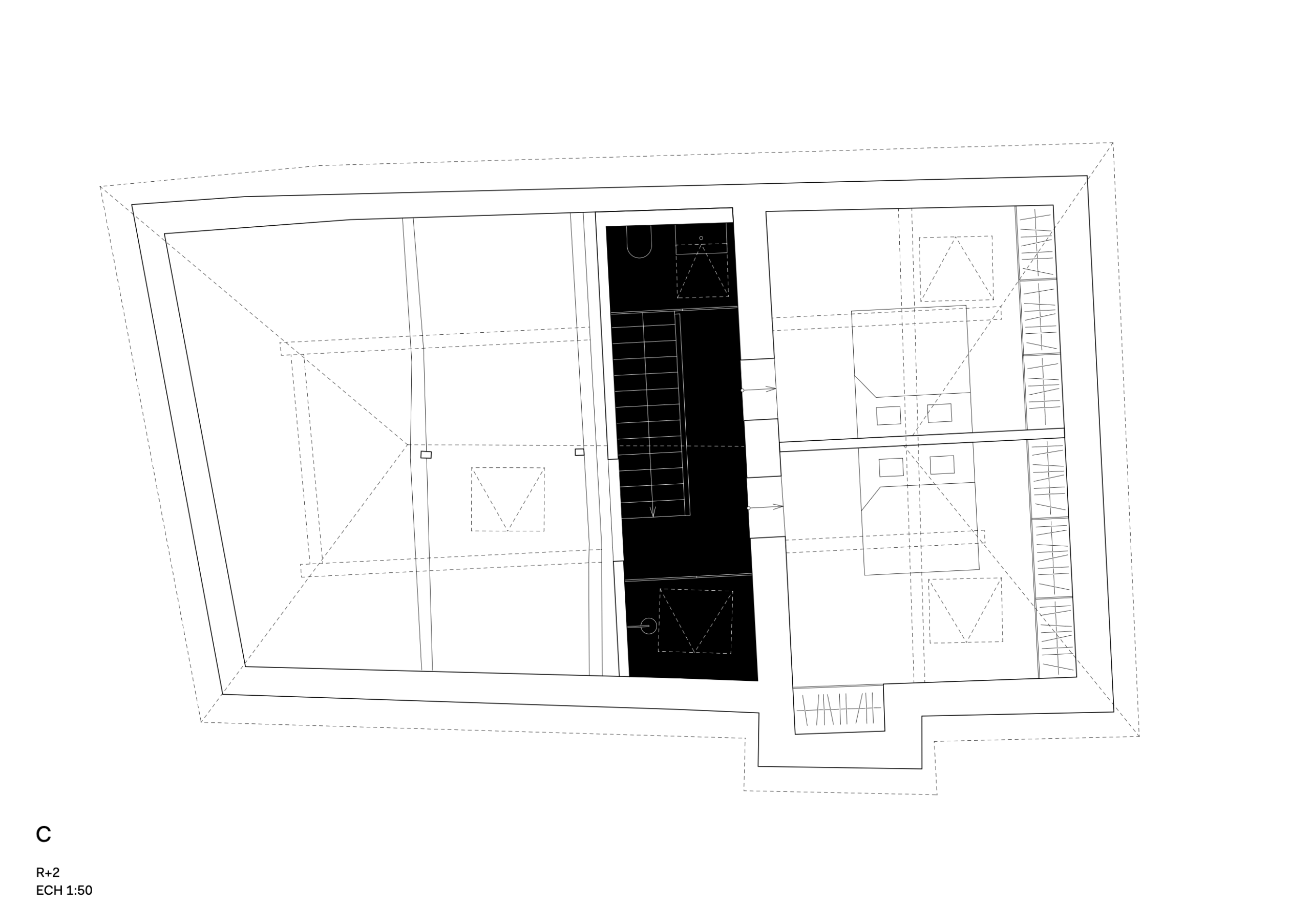
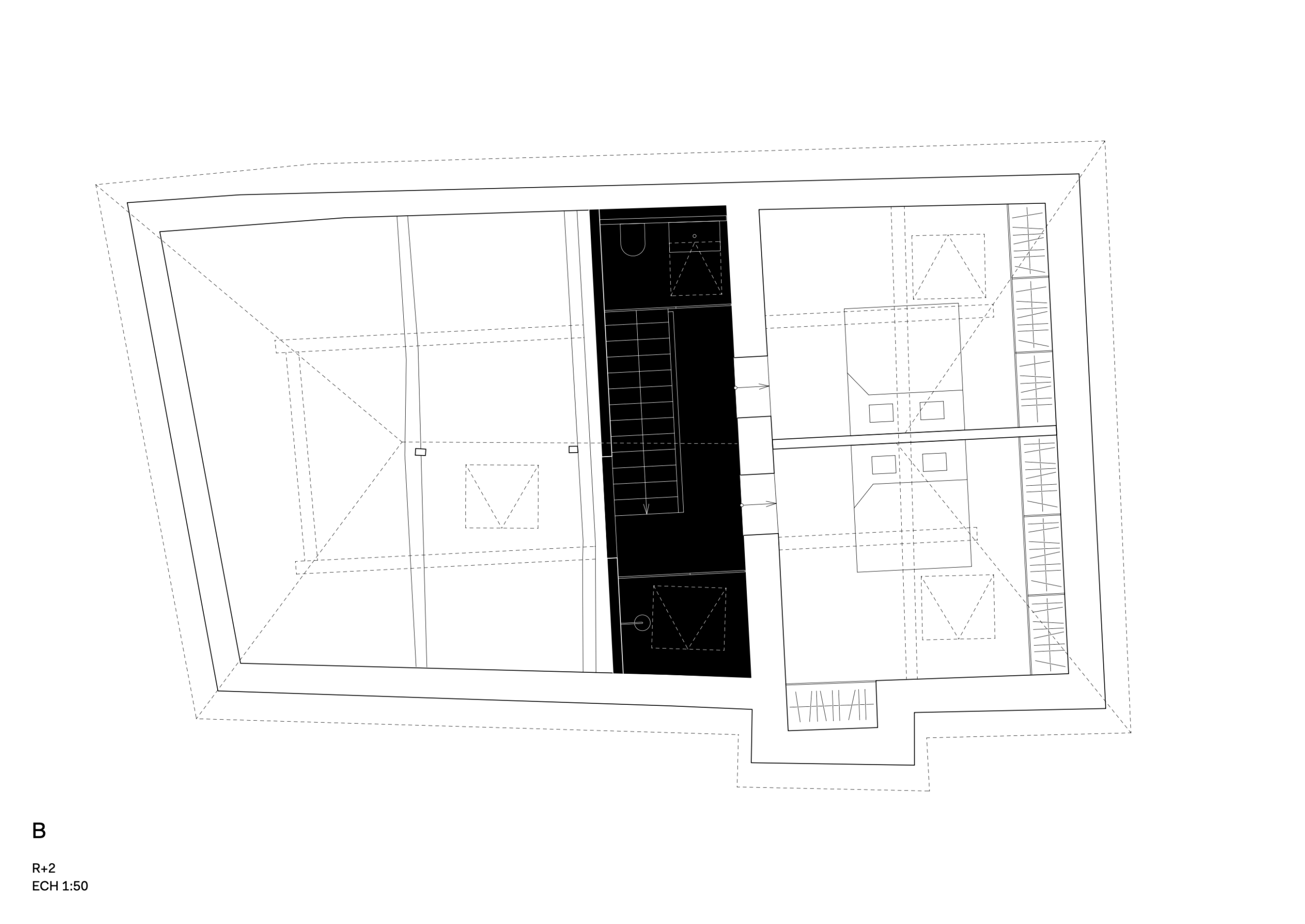
A compact timber insertion accommodates the technical infrastructure and vertical circulation. It houses an office, a separate toilet, a technical room, and laundry on the first floor, with a bathroom, a second toilet on- and the stairwell to- the floor above. This architectural volume is placed within the barn along the existing structural wall, defining and organizing the space.
From here, two bedrooms are accessed through restored and reused doors, opening onto timber-clad interiors beneath the historical roof structure.
Read MoreCloseOn the first floor, the notary’s office has been transformed into a tuned-down kitchen and dining area, aligned with the grid of the original windows. These openings were carefully preserved and upgraded with integrated double glazing.
A passage was carved through the load-bearing wall that once divided barn and office. This newly opened tunnel, lined in green-tinted plywood, leads into the main living area; an expansive, 4-to-8-metre-high volume in the barn. The space, rendered in clay, showcases the original timber roof structure, now carefully reinforced by the engineers.
All original openings have been reinterpreted with new windows. One large, square bay punctures the façade, framing the surrounding wine hills and vernacular buildings in a single, intentional gesture.
The exterior has been reworked using local techniques and materials, reimagining traditional clay-based renders for a contemporary context.
H(a)er House is infused with modern infrastructure and spatial clarity, while maintaining a close dialogue with the building’s layered past and the landscape beyond. It is a home that reflects both continuity and transformation.
Text provided by the architects.




































